Photo Credit: De Luna Bar and Restaurant
Concept Furniture Sketches
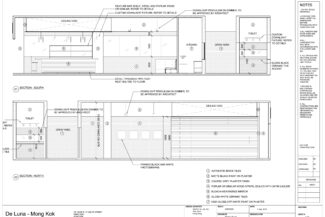
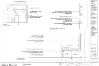
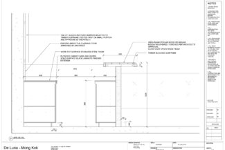
Selected Design Documents
A Bar and Restaurant in MONG KOK
Background
De Luna Bar and Restaurant is located in Mong Kong in Kowloon, Hong Kong. This small unit size is typical of the area and so the efficiency of the floor plan is the main driver of the design.
Material boards and product selections were designed by STE-AD for this project and were intended to evoke a cross between old-world textures and a new modern vibrance.
A full set of Design / Tender Drawings were prepared so the contractor could evaluate the cost and build from the documents provided to the client.
The Design
The feature wall is designed to emulate the logo and font to reiterate the branding and create a sense of space without taking up any of the precious floor space. Inset lighting along the extruded half-moon shape lights the space and drawings attention from the street.
Area:
92m² (1,000 sqft)
Completed
2017
Scope
Design Architect






















